Клапаны обратные
Материал:
- корпус: высокопрочный чугун GJS 400 (арт.6060 из гальванизированной углеродистой стали).
Область применения:
- насосные станции;
- водоснабжение;
- системы распределения и подготовки воды;
- сточные воды (арт. FM — 0052).
Свернуть описания Развернуть описания
Клапан обратный межфланцевый
Артикул:6060
| DN, мм | D, мм | DE, мм | L, мм | Вес, кг |
| 50 | 32 | 107 | 14 | 1 |
| 65 | 40 | 127 | 14 | 1.2 |
| 80 | 54 | 142 | 14 | 1.7 |
| 100 | 70 | 162 | 18 | 2.5 |
| 125 | 92 | 192 | 18 | 3.1 |
| 150 | 114 | 218 | 20 | 4.2 |
| 200 | 154 | 273 | 22 | 7.2 |
| 250 | 200 | 328 | 26 | 12 |
| 300 | 235 | 378 | 28 | 18 |
Рабочая температура: от — 10°С до +100°С;
Рабочее давление: PN 10.
Рабочее давление: PN 10.
Дополнительно:
Клапан обратный межфланцевый двухлепестковый
Артикул:0226
| DN, мм | D, мм | D1, мм | ØE, мм | ØF, мм | L, мм | Вес, кг |
| 50 | 107 | 65 | 44 | 55 | 43 | 1,5 |
| 65 | 127 | 80 | 54 | 64 | 46 | 2 |
| 80 | 142 | 94 | 69 | 85 | 64 | 2,8 |
| 100 | 162 | 117 | 86 | 106 | 64 | 4,1 |
| 125 | 192 | 145 | 109 | 126 | 70 | 6,4 |
| 150 | 218 | 170 | 128 | 155 | 16 | 8,5 |
| 200 | 273 | 224 | 179 | 203 | 89 | 13,5 |
| 250 | 329 | 265 | 224 | 265 | 114 | 22 |
| 300 | 384 | 312 | 268 | 310 | 114 | 30 |
Рабочая температура: от — 10°C до +100°C
Рабочее давление: PN 10
Рабочее давление: PN 10
Дополнительно:
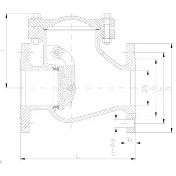
Клапан обратный поворотный, «Swing» PN 10
Артикул:С 070
| DN, мм | G | K | D | L, мм | H, мм | b | n — Ød | Вес, кг |
| 40 | 88 | 110 | 150 | 180 | 120 | 18 | 4-18 | 11,5 |
| 50 | 102 | 125 | 165 | 200 | 140 | 20 | 4-18 | 13,6 |
| 65 | 122 | 145 | 185 | 240 | 150 | 20 | 4-18 | 21 |
| 80 | 138 | 160 | 200 | 260 | 165 | 22 | 4-18 | 26,5 |
| 100 | 158 | 180 | 220 | 300 | 175 | 24 | 8-18 | 32 |
| 125 | 188 | 210 | 250 | 350 | 198 | 26 | 8-18 | 45 |
| 150 | 212 | 240 | 285 | 400 | 229 | 26 | 8-18 | 71,5 |
| 200 | 268 | 295 | 340 | 500 | 249 | 26 | 8-23 | 95 |
| 250 | 320 | 350 | 395 | 600 | 310 | 28 | 12-23 | 139 |
| 300 | 370 | 400 | 445 | 700 | 322 | 28 | 12-23 | 286 |
Дополнительно:
Клапан обратный поворотный, «Swing» PN 16
Артикул:С 071
| DN, мм | G | K | D | L, мм | H, мм | b | n — Ød | Вес, кг |
| 40 | 88 | 110 | 150 | 180 | 120 | 18 | 4-18 | 11,5 |
| 50 | 102 | 125 | 165 | 200 | 140 | 20 | 4-18 | 13,6 |
| 65 | 122 | 145 | 185 | 240 | 150 | 20 | 4-18 | 21 |
| 80 | 138 | 160 | 200 | 260 | 165 | 22 | 8-18 | 26,5 |
| 100 | 158 | 180 | 220 | 300 | 175 | 24 | 8-18 | 32 |
| 125 | 188 | 210 | 250 | 350 | 198 | 26 | 8-18 | 45 |
| 150 | 212 | 240 | 285 | 400 | 229 | 26 | 8-18 | 71,5 |
| 200 | 268 | 295 | 340 | 500 | 249 | 26 | 12-23 | 95 |
| 250 | 320 | 355 | 405 | 600 | 310 | 28 | 12-27 | 139 |
| 300 | 378 | 410 | 460 | 700 | 322 | 28 | 12-27 | 286 |
Дополнительно:
Клапан обратный пружинный фланцевый
Артикул:С 086
| DN, мм | PN, bar | G, мм | K, мм | D, мм | n — Ød | L, мм | Вес, кг |
| 50 | 16 | 98 | 125 | 165 | 4 — Ø19 | 100 | 5,7 |
| 65 | 16 | 118 | 145 | 185 | 4 — Ø19 | 120 | 8,7 |
| 80 | 10 | 132 | 160 | 200 | 4 — Ø19 | 140 | 10,8 |
| 80 | 16 | 132 | 160 | 200 | 8 — Ø19 | 140 | 10,8 |
| 100 | 16 | 156 | 180 | 220 | 8 — Ø19 | 170 | 13,5 |
| 125 | 16 | 184 | 210 | 250 | 8 — Ø19 | 200 | 21 |
| 150 | 16 | 211 | 240 | 285 | 8 — Ø23 | 230 | 30 |
| 200 | 10 | 260 | 295 | 340 | 8 — Ø23 | 300 | 49 |
| 200 | 16 | 260 | 295 | 340 | 12 — Ø23 | 300 | 49 |
| 250 | 10 | 319 | 350 | 405 | 12 — Ø23 | 370 | 73,3 |
| 250 | 16 | 319 | 355 | 405 | 12 — Ø28 | 370 | 73,3 |
Рабочая температура: от — 10°C до +70°C
Рабочее давление: min 0,3 bar — max 10/16 bar
Рабочее давление: min 0,3 bar — max 10/16 bar
Дополнительно:
Клапан обратный с гидротормозом
Артикул:D 160
| DN, мм | L, мм | e1, мм | e2, мм | h1, мм | h2, мм | Вес, кг |
| 150 | 210 | 143 | 265 | 276 | 316 | 45 |
| 200 | 230 | 208 | 357 | 297 | 364 | 85 |
| 250 | 250 | 239 | 373 | 288 | 373 | 108 |
| 300 | 270 | 259 | 414 | 294 | 367 | 140 |
| 350 | 290 | 289 | 468 | 325 | 435 | 194 |
| 400 | 310 | 320 | 510 | 339 | 421 | 260 |
| 450 | 330 | 355 | 550 | 335 | 425 | 273 |
| 500 | 350 | 380 | 595 | 476 | 492 | 360 |
| 600 | 390 | 430 | 631 | 515 | 610 | 513 |
| 700 | 430 | 495 | 750 | 603 | 755 | 798 |
| 800 | 470 | 561 | 812 | 644 | 872 | 1028 |
| 900 | 510 | 660 | 933 | 707 | 1010 | 1382 |
| 1000 | 550 | 684 | 1045 | 705 | 1198 | 2175 |
Рабочая температура: от — 15°C до +80°C
Дополнительно:
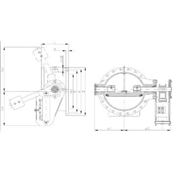
Клапан обратный с противовесом
Артикул:D 150
| DN, мм | PN, bar | L, мм | L1, мм | L2, мм | e1, мм | e2, мм | e3, мм | h1, мм | h2, мм | h3, мм | Вес, кг |
| 100 | 16 | 190 | - | 200 | 200 | 184 | - | 135 | 188 | 25 | 20 |
| 125 | 16 | 200 | - | 200 | 223 | 207 | - | 156 | 188 | 46 | 26 |
| 150 | 16 | 210 | - | 200 | 245 | 230 | 9 | 180 | 188 | 58 | 35 |
| 200 | 16 | 230 | - | 200 | 268 | 252 | 35 | 220 | 188 | 99 | 43 |
| 200 | 25 | 230 | - | 200 | 268 | 252 | 35 | 230 | 188 | 109 | 48 |
| 250 | 16 | 250 | - | 300 | 331 | 305 | 68 | 265 | 280 | 96 | 73 |
| 250 | 25 | 250 | 280 | 300 | 338 | 317 | 68 | 285 | 280 | 116 | 94 |
| 300 | 16 | 270 | 315 | 300 | 343 | 317 | 87 | 305 | 280 | 136 | 96 |
| 300 | 25 | 270 | 315 | 400 | 395 | 362 | 88 | 328 | 372 | 115 | 126 |
| 350 | 16 | 290 | 250 | 400 | 415 | 382 | 117 | 357 | 372 | 142 | 136 |
| 350 | 25 | 290 | 250 | 400 | 438 | 410 | 117 | 375 | 372 | 160 | 175 |
| 400 | 16 | 310 | 370 | 400 | 445 | 412 | 138 | 400 | 372 | 185 | 168 |
| 400 | 25 | 310 | 370 | 400 | 485 | 460 | 138 | 420 | 372 | 195 | 287 |
| 450 | 16 | 330 | 425 | 450 | 470 | 443 | 165 | 442 | 418 | 206 | 237 |
| 450 | 25 | 330 | 425 | 500 | 513 | 488 | 165 | 457 | 463 | 221 | 298 |
| 500 | 16 | 350 | 460 | 500 | 522 | 490 | 188 | 492 | 465 | 224 | 294 |
| 500 | 25 | 350 | 460 | 500 | 573 | 554 | 191 | 500 | 465 | 232 | 376 |
| 600 | 16 | 390 | 535 | 600 | 594 | 567 | 238 | 570 | 555 | 270 | 423 |
| 600 | 25 | 390 | 535 | 600 | 627 | 610 | 238 | 582 | 555 | 272 | 512 |
| 700 | 16 | 430 | 585 | 700 | 706 | 661 | 304 | 640 | 650 | 277 | 550 |
| 700 | 25 | 430 | 310 | 700 | 715 | 698 | 298 | 665 | 647 | 304 | 710 |
| 800 | 16 | 470 | 355 | 800 | 746 | 711 | 354 | 720 | 736 | 317 | 820 |
| 900 | 16 | 510 | 380 | 900 | 805 | 780 | 400 | 797 | 830 | 348 | 1060 |
| 1000 | 16 | 550 | 390 | 1000 | 875 | 863 | 460 | 887 | 923 | 390 | 1245 |
| 1200 | 16 | 630 | 810 | 1200 | 960 | 938 | 568 | 1055 | 1110 | 448 | 1810 |
| 1400 | 16 | 710 | 900 | 1400 | 1240 | 1210 | 682 | 1210 | 1295 | 502 | 3420 |
Рабочая температура: от — 15°C до +80°C
Дополнительно:
Клапан обратный шаровой резьбовой
Артикул:FM - 0052
| DN | DN, мм | L, мм | H, мм | C, мм | Вес, кг |
| 1'' | 25 | 125 | 78 | 47 | 1,3 |
| 1¼'' | 32 | 132 | 81 | 59 | 1,7 |
| 1½'' | 40 | 145 | 97 | 68 | 2,6 |
| 2'' | 50 | 174 | 118 | 82 | 4,2 |
| 2½'' | 65 | 200 | 128 | 104 | 5,5 |
| 3'' | 80 | 243 | 160 | 146 | 10 |
Рабочая температура: от — 10°C до +80°C
Рабочее давление: PN 16
Рабочее давление: PN 16
Дополнительно:
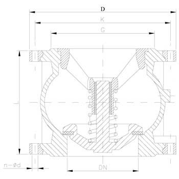
Клапан обратный шаровой фланцевый
| DN, мм | G | K | D | n — d1 | L, мм | H, мм | Вес, кг | |||
| PN10 | PN16 | PN10 | PN16 | PN10 | PN16 | |||||
| 50 | 98 | 125 | 125 | 165 | 165 | 4 — Ø 19 | 4 — Ø 19 | 200 | 106 | 7,7 |
| 65 | 118 | 145 | 145 | 185 | 185 | 4 — Ø 19 | 4 — Ø 19 | 240 | 129 | 11,2 |
| 80 | 132 | 160 | 160 | 200 | 200 | 4 — Ø 19 | 8 — Ø 19 | 260 | 146 | 15,4 |
| 100 | 156 | 180 | 180 | 220 | 220 | 8 — Ø 19 | 8 — Ø 19 | 300 | 194 | 21,7 |
| 125 | 184 | 210 | 210 | 250 | 250 | 8 — Ø 19 | 8 — Ø 19 | 350 | 207 | 33 |
| 150 | 211 | 240 | 240 | 285 | 285 | 8 — Ø 23 | 8 — Ø 23 | 400 | 240 | 45,3 |
| 200 | 260 | 295 | 295 | 340 | 340 | 8 — Ø 23 | 12 — Ø 23 | 500 | 322 | 90 |
| 250 | 319 | 350 | 355 | 395 | 405 | 12 — Ø 23 | 12 — Ø 28 | 600 | 388 | 163 |
| 300 | 370 | 400 | 410 | 445 | 460 | 12 — Ø 23 | 12 — Ø 28 | 700 | 458 | 230 |
Рабочая температура: от — 10°C до +80°C
Рабочее давление: PN 16
Фланцы стандартно просверлены под PN 10
Рабочее давление: PN 16
Фланцы стандартно просверлены под PN 10
Дополнительно:





















